


- ○木造在来軸組工法+(外壁下地構造用合板&剛床仕様)
- ○基礎:ベタ基礎
- ○床下換気:全周通気(基礎パッキン工法)
- ○屋根:平形屋根スレート葺き
- ○ZEH水準省エネ住宅:建物断熱性能等級 5+ 一時エネルギー消費量等級 6
- ○外壁:マイクロガード機能付き窯業サイディング厚16㎜
- ○窓:アルミ樹脂複合サッシ・Low-eペアガラス・網戸標準装備
- ○引違・掃出窓:手動式シャッター付(全階共)
- ○玄関ドア:スマートコントロールキー(ポケットキー対応)
- ○システムキッチン:浄水機能付タッチレス水栓・ビルトイン食器洗乾燥機・Wサポートシンク・3口フルIH・無水両面焼グリル・ソフトクローズ足元収納
- ○キッチンカップボード&家電収納標準装備
- ○浴室(1坪タイプUB):断熱浴槽(専用フタ付)・セミオート給湯・浴室乾燥機付
- ○洗面化粧台(W900):シャンプードレッサータイプ・3面鏡
- ○トイレ:温水シャワートイレ一体型便座(壁付リモコン)
- ○床下収納:洗面脱衣室・キッチン各1箇所
- ○カラーTVモニターインターフォン
- ○人感センサー付玄関灯
- ○24時間換気
- ○給湯設備 オール電化仕様型24号(エコキュート フルオート370Lタイプ)
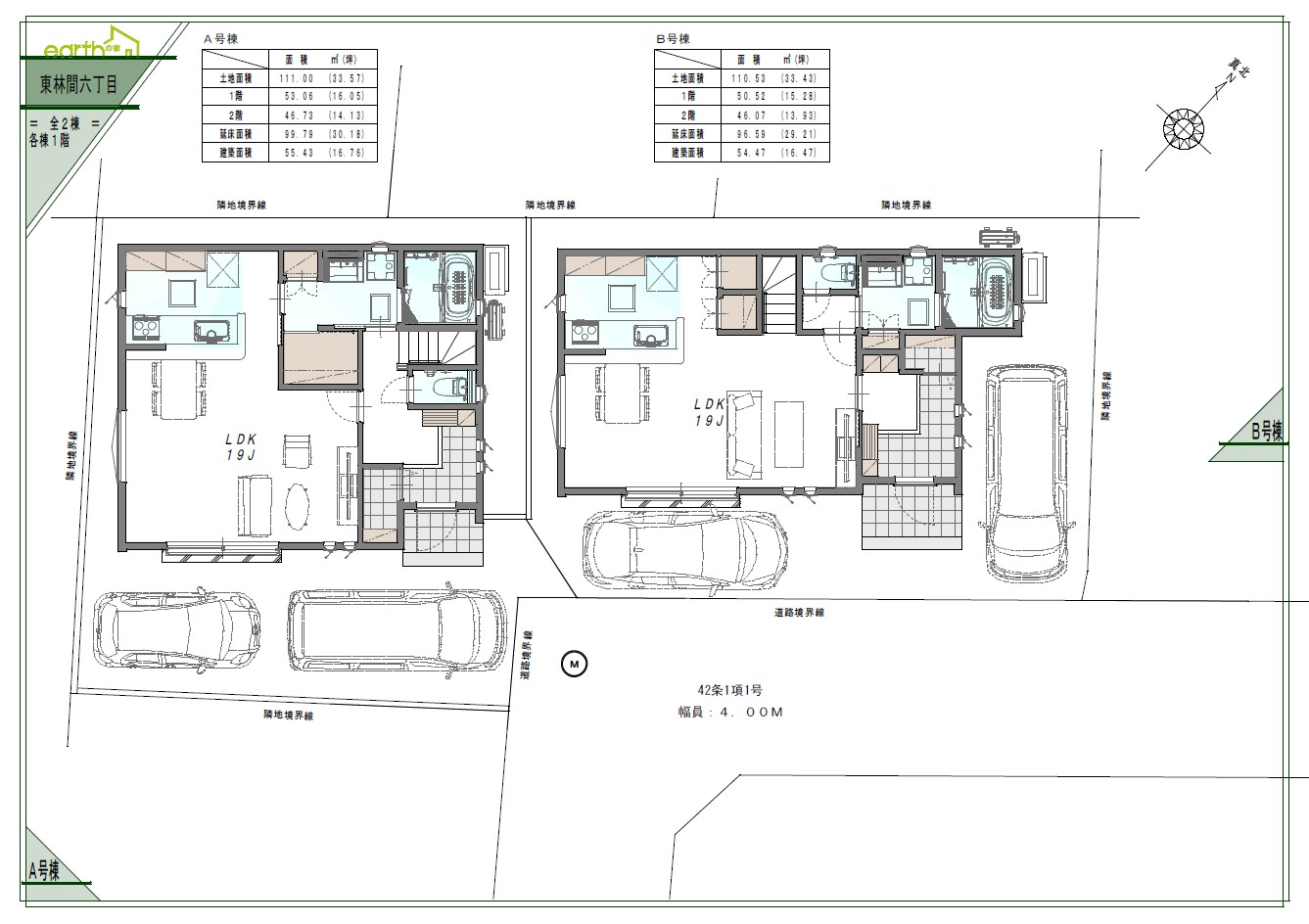
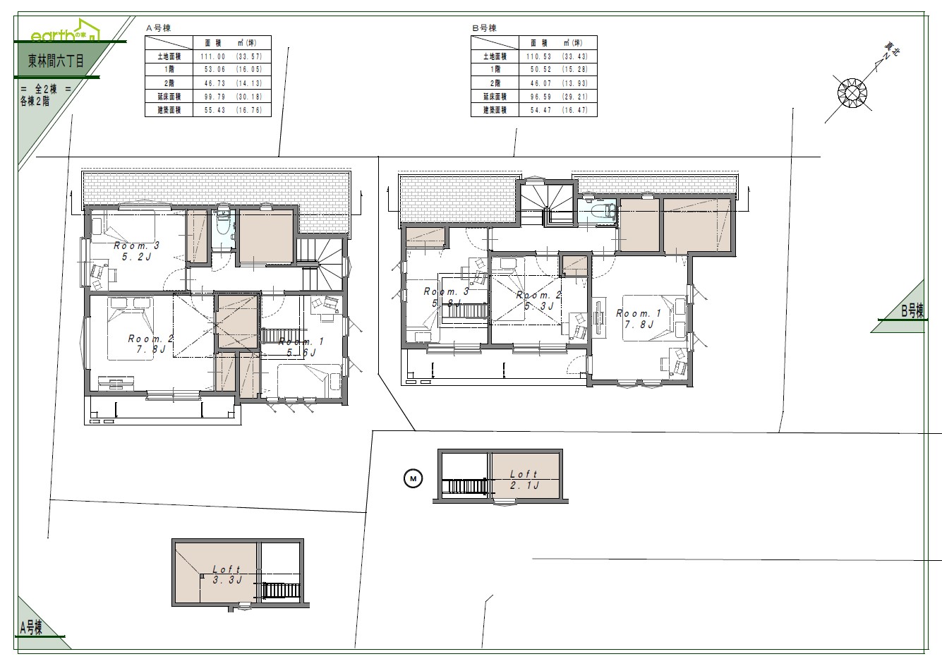
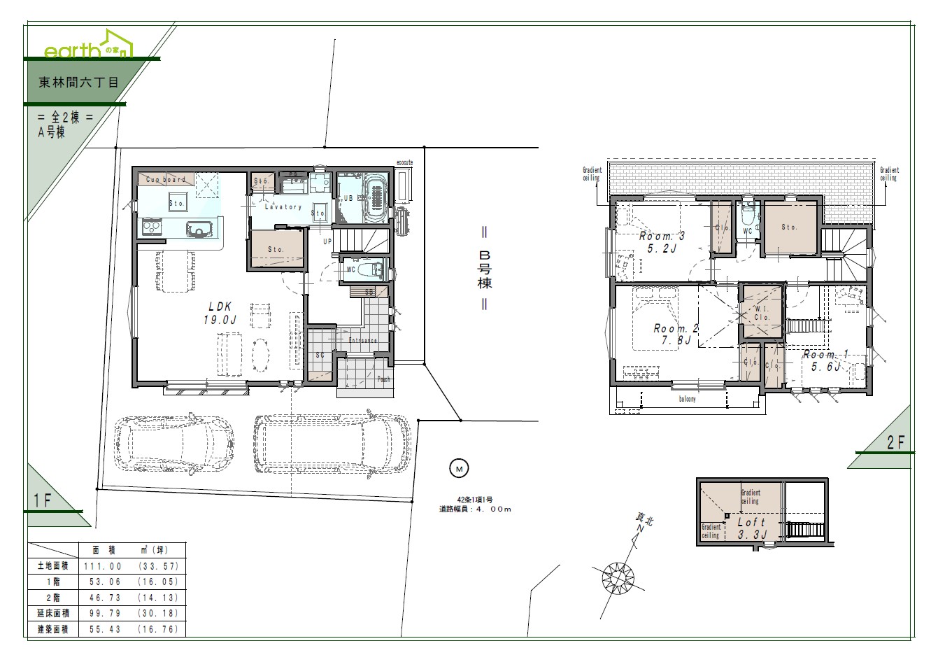
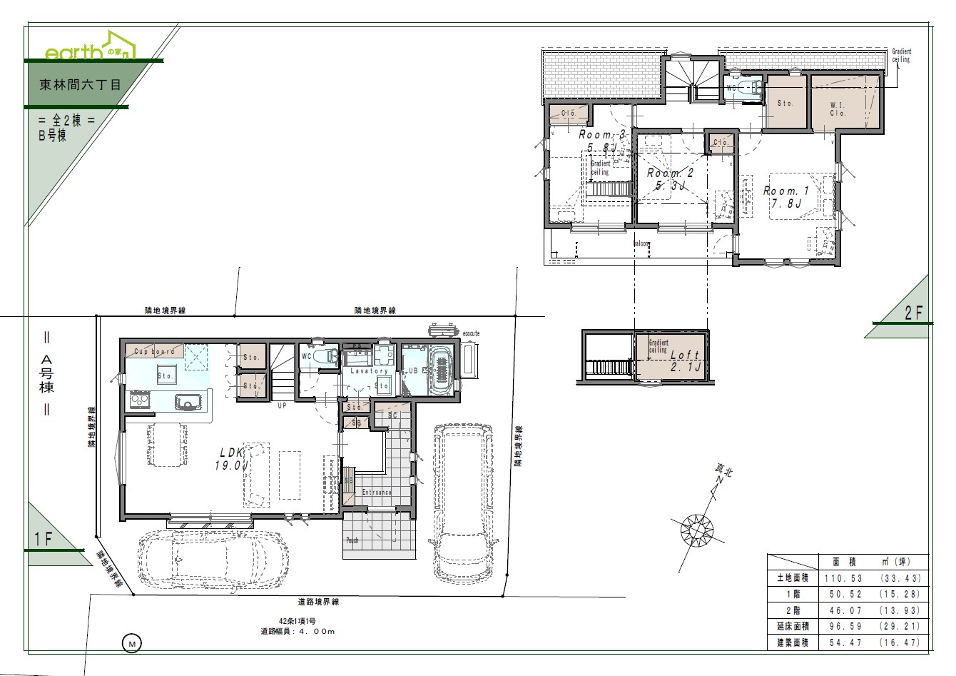
物件概要
所在地
神奈川県相模原市南区東林間六丁目5736-32
(ナビ入力:東林間六丁目9-14の隣)
販売価格
A号棟 6,175万円
B号棟 6,385万円
JIO「我が家の保険」加入
建築面積 / 土地面積
A号棟 99.79 ㎡ / 111.00 ㎡
B号棟 96.59 ㎡ / 110.53 ㎡
都市計画
市街化区域
用途地域
第一種低層住居地域
建ぺい率 / 容積率
50% / 100%
構造・規模
木造(在来工法)2階建て
設備
東京電力・公営水道・公共下水
法令上の制限
準防火地域
交通
小田急小田原線『東林間』駅より 徒歩8分
東急田園都市線『中央林間』駅より 徒歩21分
周辺施設
くぬぎ台小学校 徒歩13分
上鶴間中学校 徒歩13分
ファミリーマート東林間六丁目店 徒歩5分
スーパー三和東林間西口店 徒歩6分
セブンイレブン相模原相南一丁目店 徒歩6分
クリエイトSD東林間駅前通り店 徒歩7分
ダイソーローソンストア100東林間店 徒歩8分
東急ストア東林間店 徒歩9分
完成予定日
A号棟 : 2026年1月中旬
B号棟 : 2026年1月中旬













