


- ○木造在来軸組工法+(外壁下地構造用合板&剛床仕様)
- ○基礎:ベタ基礎
- ○床下換気:全周通気(基礎パッキン工法)
- ○屋根:平形屋根スレート葺き
- ○ZEH水準省エネ住宅:建物断熱性能等級 5+ 一時エネルギー消費量等級 6
- ○外壁:マイクロガード機能付き窯業サイディング厚16㎜
- ○窓:アルミ樹脂複合サッシ・Low-eペアガラス・網戸標準装備
- ○引違・掃出窓:手動式シャッター付(全階共)
- ○システムキッチン:浄水機能付タッチレス水栓・ビルトイン食器洗乾燥機・Wサポートシンク・ガラストップ3口ガスコンロ(オートグリル付)・ソフトクローズ足元収納
- ○キッチンカップボード&家電収納標準装備
- ○浴室(1坪タイプUB):断熱浴槽(専用フタ付)・セミオート給湯・浴室乾燥機付
- ○洗面化粧台(W900):シャンプードレッサータイプ・3面鏡
- ○トイレ:温水シャワートイレ一体型便座(壁付リモコン)
- ○床下収納:洗面脱衣室・キッチン各1箇所
- ○カラーTVモニターインターフォン
- ○人感センサー付玄関灯
- ○24時間換気
- ○給湯設備 オート型24号(エコジョーズタイプ)
物件概要
所在地
神奈川県相模原市南区桜台4208-87
(ナビ入力:南区桜台15-6)
販売価格
A号棟 5,080万円
B号棟 4,795万円
JIO「我が家の保険」加入
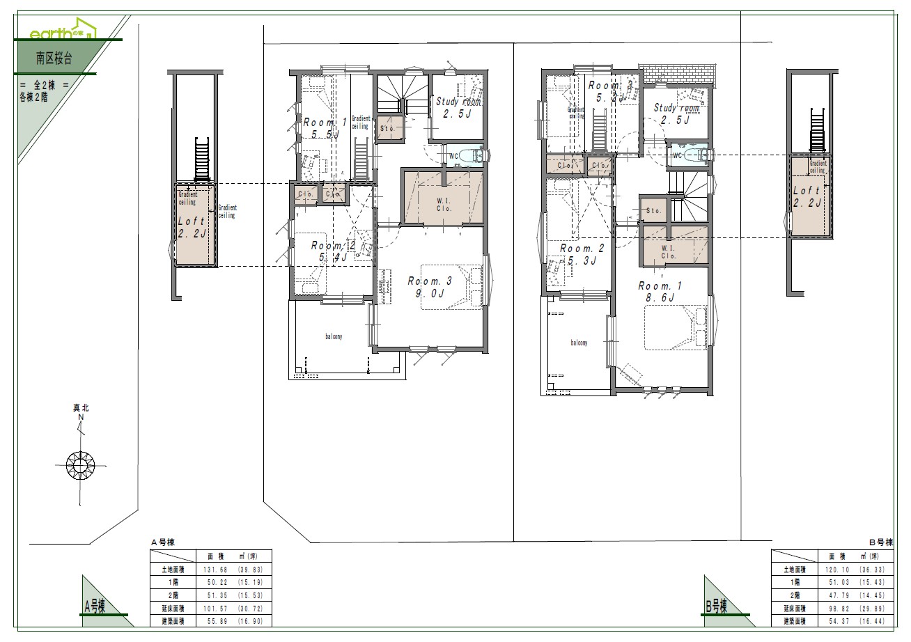
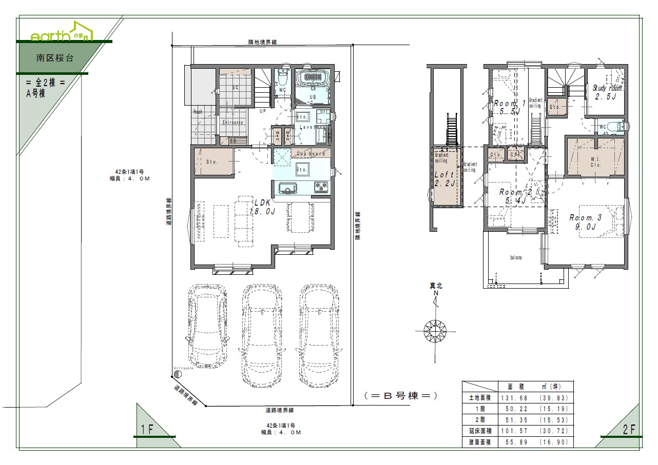
建築面積 / 土地面積
A号棟 101.57 ㎡ / 131.68 ㎡
B号棟 98.82 ㎡ / 120.10 ㎡
都市計画
市街化区域
用途地域
第一種中高層住居専用地域
建ぺい率 / 容積率
60% / 200%
構造・規模
木造(在来工法)2階建て
設備
東京電力・公営水道・公共下水・都市ガス
法令上の制限
準防火地域
交通
小田急小田原線『小田急相模原』駅より 徒歩22分
周辺施設
桜台小学校 徒歩4分
相模台中学校 徒歩6分
セブンイレブン相模原双葉店 徒歩3分
クリエイトSD相模原麻溝台店 徒歩9分
ローソン相模台店 徒歩11分
スーパーマーケットトップ 徒歩11分
ファミリーマート相模台五丁目店 徒歩14分
スーパー三和相模台店 徒歩19分
完成予定日
A号棟 : 2026年1月下旬
B号棟 : 2026年1月下旬













