


- ○木造在来軸組工法+(外壁下地構造用合板&剛床仕様)
- ○基礎:ベタ基礎
- ○床下換気:全周通気(基礎パッキン工法)
- ○屋根:アスファルトシングル葺き
- ○ZEH水準省エネ住宅:建物断熱性能等級 5+ 一時エネルギー消費量等級 6
- ○外壁:マイクロガード機能付き窯業サイディング厚16㎜
- ○窓:アルミ樹脂複合サッシ・Low-eペアガラス・網戸標準装備
- ○引違・掃出窓:手動式シャッター付(全階共)
- ○システムキッチン:浄水機能付ハンドシャワー水栓・ビルトイン食器洗乾燥機・Wサポートシンク・センサー付ガス3口コンロ(グリル)・ソフトクローズ足元収納
- ○キッチンカップボード&家電収納標準装備
- ○浴室(1坪タイプUB):断熱浴槽(専用フタ付)・セミオート給湯・浴室乾燥機付
- ○洗面化粧台(W900):シャンプードレッサータイプ・3面鏡
- ○トイレ:温水シャワートイレ一体型便座(壁付リモコン)
- ○床下収納:洗面脱衣室・キッチン各1箇所
- ○カラーTVモニターインターフォン
- ○人感センサー付玄関灯
- ○24時間換気
- ○給湯設備 オート型24号(エコジョーズタイプ)
- ○温水シャワー外水栓
物件概要
所在地
神奈川県相模原市中央区小山二丁目757-148.185.150.151
(ナビ入力:小山二丁目9-21の隣)
販売価格
A号棟 4,585万円
B号棟 4,585万円
JIO「我が家の保険」加入
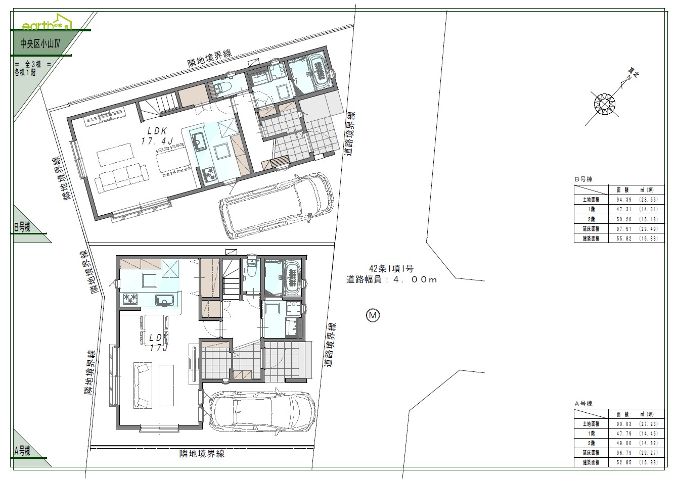
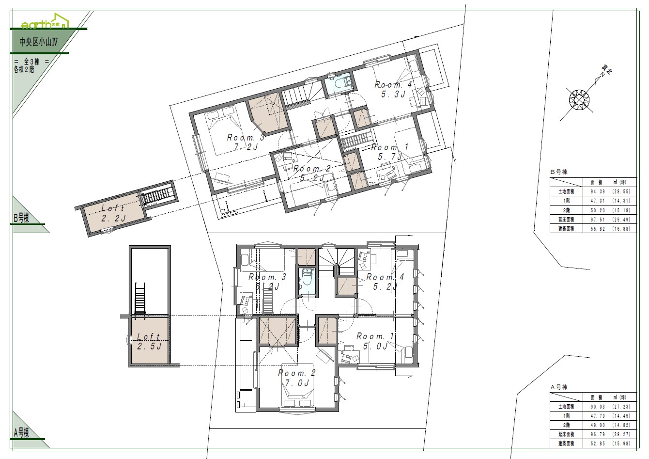
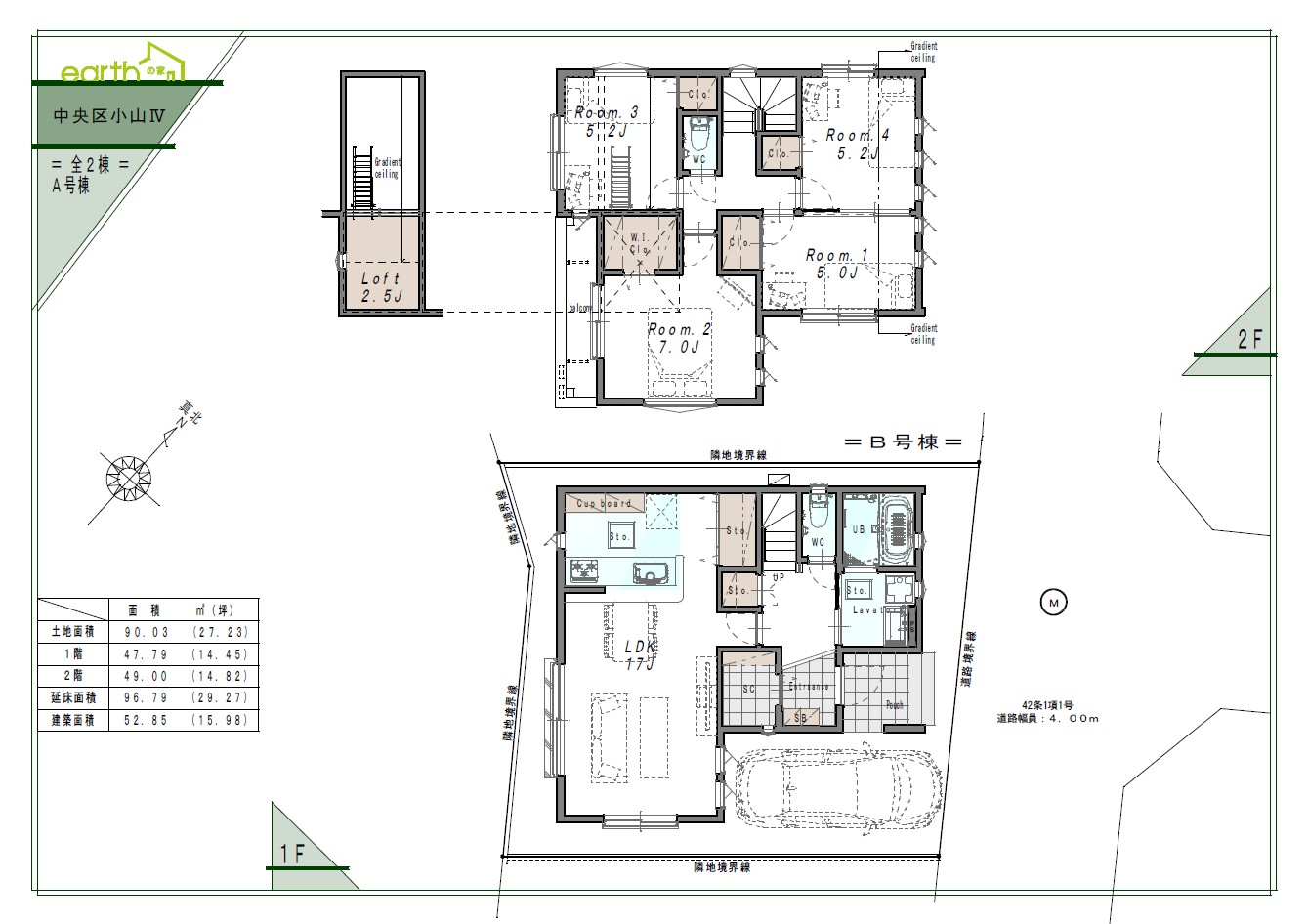
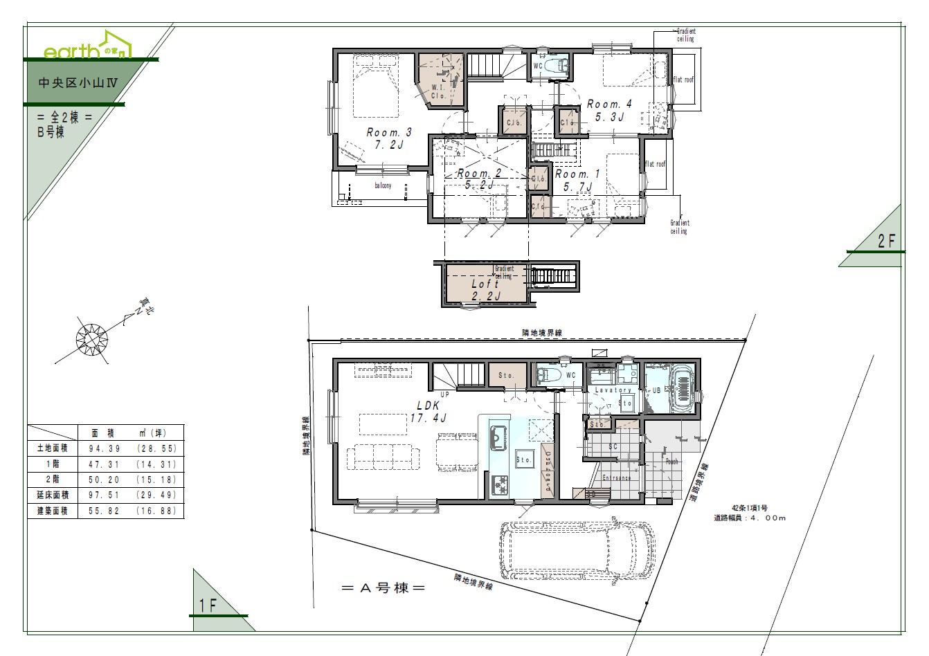
建築面積 / 土地面積
A号棟 96.79 ㎡ / 90.03 ㎡
B号棟 97.51 ㎡ / 94.39 ㎡
都市計画
市街化区域
用途地域
第一種住居地域
建ぺい率 / 容積率
60% / 200%
構造・規模
木造(在来工法)2階建て
設備
東京電力・公営水道・公共下水・都市ガス
法令上の制限
準防火地域・第二種高度地区
交通
JR横浜線『相模原』駅より 徒歩19分
JR横浜線『橋本』駅より 徒歩26分
周辺施設
小山小学校 徒歩5分
小山中学校 徒歩5分
ローソン相模原小山二丁目店 徒歩3分
セブンイレブン相模原小山三丁目店 徒歩5分
ライフ相模原モール店 徒歩7分
コーナン相模原小山店 徒歩8分
ウエルシア相模原ラクーン店 徒歩9分
角上魚類相模原店 徒歩12分
完成予定日
A号棟 : 2025年12月下旬
B号棟 : 2025年12月下旬













