


- ○木造在来軸組工法+(外壁下地構造用合板&剛床仕様)
- ○基礎:ベタ基礎
- ○床下換気:全周通気(基礎パッキン工法)
- ○屋根:平型屋根スレート葺き
- ○ZEH水準住宅:建物断熱性能等級 5+ 一時エネルギー消費量等級 6
- ○外壁:マイクロガード機能付き窯業サイディング厚16㎜
- ○窓:アルミ樹脂複合サッシ・Low-eペアガラス・網戸標準装備
- ○引違・掃出窓:手動式シャッター付(全階共)
- ○システムキッチン:浄水機能付ハンドシャワー水栓・ビルトイン食器洗乾燥機・Wサポートシンク・ガラストップ3口ガスコンロ(オートグリル付)・ソフトクローズ足元収納
- ○キッチンカップボード&家電収納標準装備
- ○浴室(1坪タイプUB):断熱浴槽(専用フタ付)・セミオート給湯・浴室乾燥機付
- ○洗面化粧台(W900):シャンプードレッサータイプ・3面鏡
- ○トイレ:温水シャワートイレ一体型便座(壁付リモコン)
- ○床下収納:洗面脱衣室・キッチン各1箇所
- ○カラーTVモニターインターフォン
- ○人感センサー付玄関灯
- ○24時間換気
- ○給湯設備 オート型24号(エコジョーズタイプ)
- ○温水シャワー外水栓
物件概要
所在地
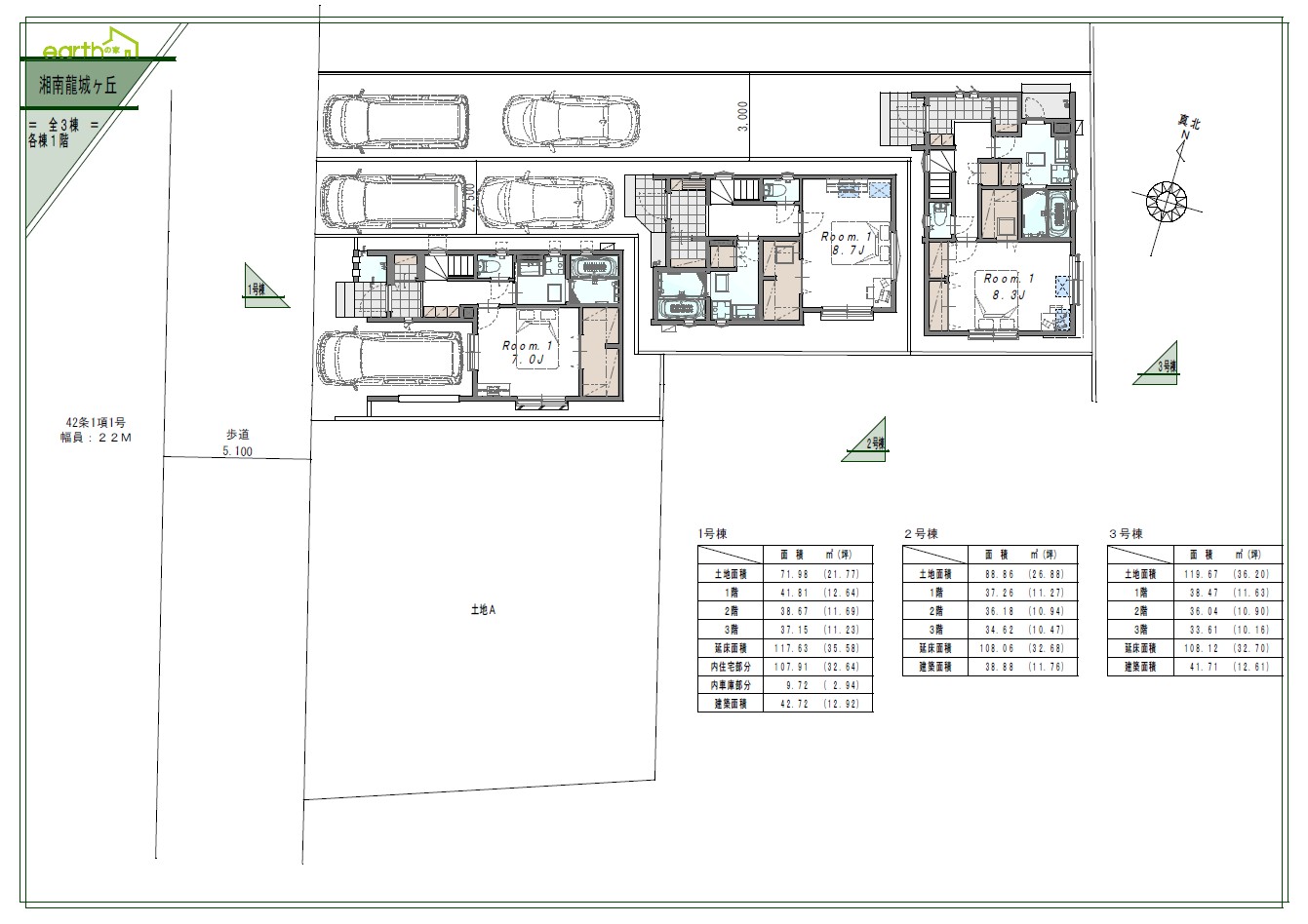
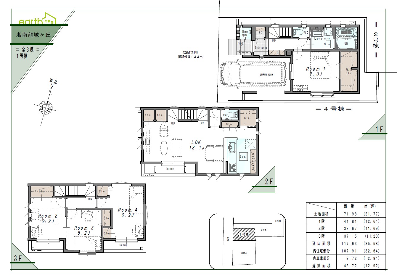
神奈川県平塚市龍城ヶ丘39-1、39-11、39-12
(ナビ入力:龍城ヶ丘12-27の隣)
販売価格
1号棟 5,195万円
2号棟 4,795万円
3号棟 4,985万円
JIO「我が家の保険」加入
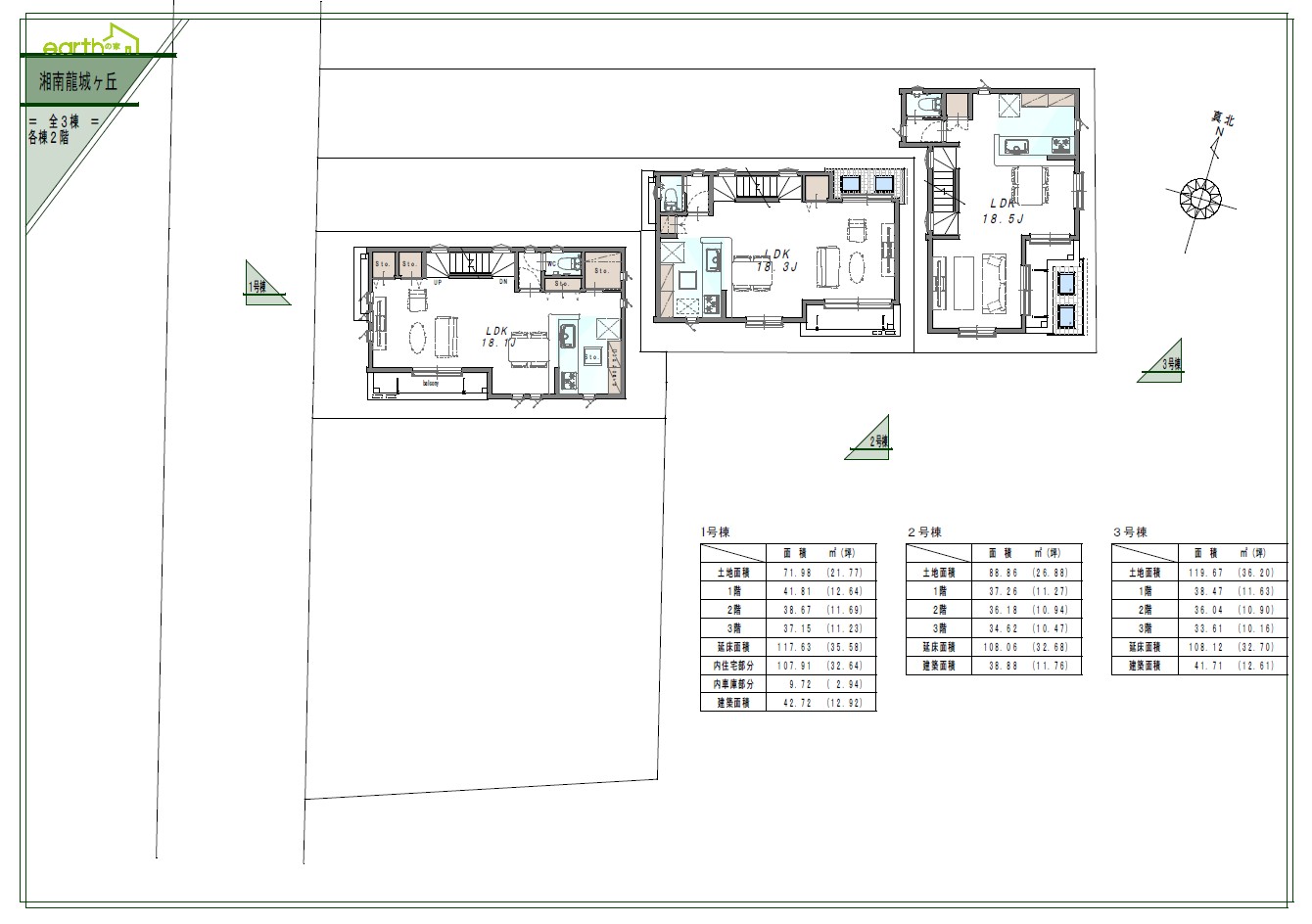
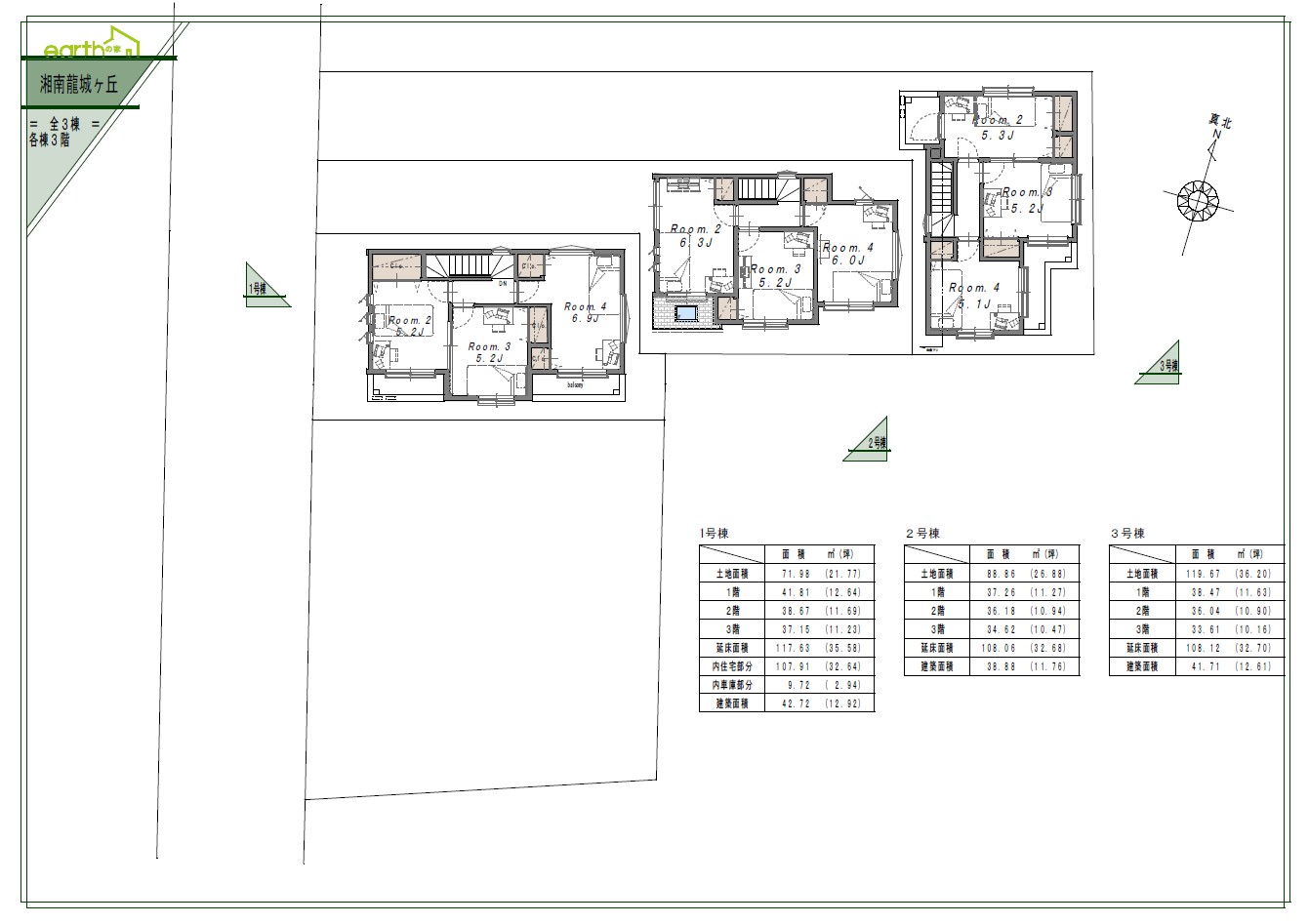
建築面積 / 土地面積
1号棟 117.63 ㎡ / 71.98 ㎡
2号棟 108.06 ㎡ / 88.86 ㎡
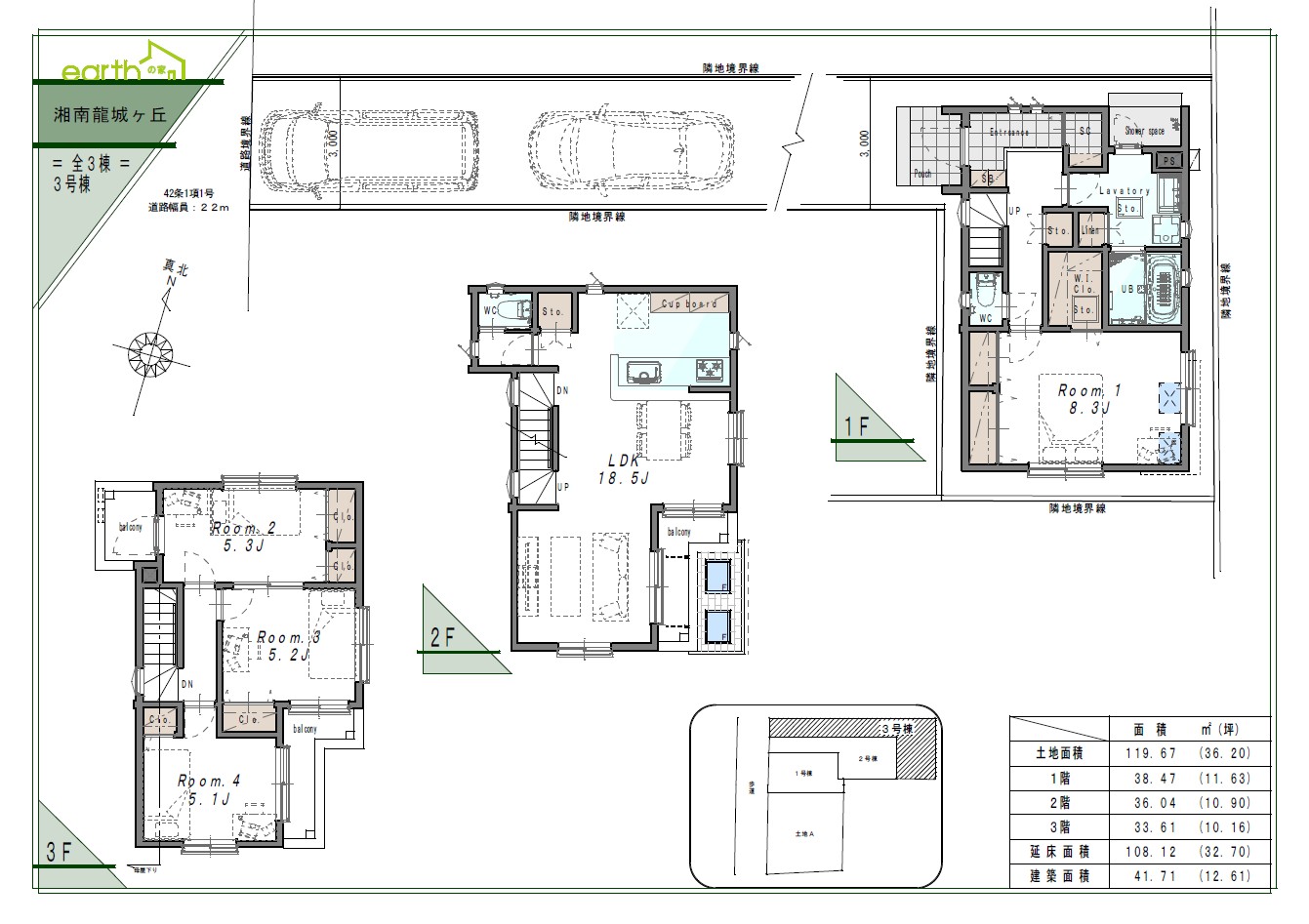
3号棟 108.12 ㎡ / 119.67 ㎡
都市計画
市街化区域
用途地域
第一種中高層住居専用地域
建ぺい率 / 容積率
60% / 200%
構造・規模
木造(在来工法)3階建て
設備
東京電力・公営水道・公共下水・都市ガス
法令上の制限
準防火地域・第二種高度地区
交通
JR東海道線『平塚』駅より 徒歩18分
周辺施設
花水小学校 徒歩2分
浜岳中学校 徒歩5分
セブンイレブン平塚虹ヶ浜店 徒歩1分
クリエイトS・D平塚龍城ヶ丘店 徒歩5分
しまむらストアーすみれ平店 徒歩5分
平塚市南図書館 徒歩7分
エイヴイ平塚店 徒歩11分
ファミリーマート平塚袖ヶ浜店 徒歩12分
完成予定日
1号棟 : 2025年12月中旬
2号棟 : 2025年10月下旬
3号棟 : 2025年10月中旬















