

| 所在地 |
相模原市中央区陽光台4丁目5762番27及び28 ※ナビ入力:陽光台4-15-2 |
|---|---|
| 販売価格 |
3,255 万円 |
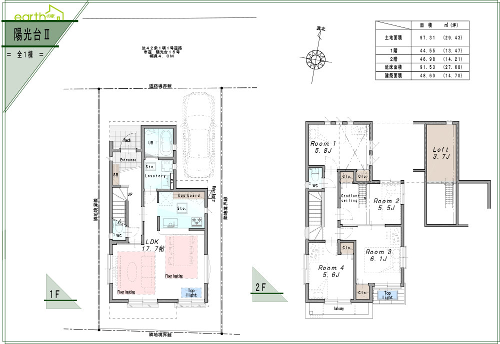
| 建物面積 |
91.53 ㎡ |
| 土地面積 |
97.31 ㎡ |
| 土地権利 | 所有権 |
| 都市計画 | 市街化区域 |
| 建ペイ率 | 50% |
| 容積率 | 100% |
| 地目 | 宅地 |
| 用途地域 | 第一種低層住居専用 |
| 建物構造 |
木造2階建て |
| 現況 | 建築中 |
| 引き渡し時期 | 相談 |
| 完成予定日 | 2019年4月下旬 |
| 法令上の制限 | 準防火地域 |
| 設備 | 東京電力・公営水道・公共下水・都市ガス |
| 交通 | JR相模線 『上溝』 駅より 徒歩16分 |
|---|---|
| こだわりポイント! |
○ベタ基礎 ○床下全周通気(基礎パッキン工法) ○通柱・一般柱3.5寸角集成材 ○外壁下地構造用合板仕様 ○剛床仕様 ○耐震座金仕様 ○アスファルトシングル葺き屋根 ○天然木複合フローリング ○リビング・ダイニング電気式床暖房付 ○床下収納庫付き(2箇所) ○システムキッチン(浄水機能付ハンドシャワー水栓・食器洗乾燥機・ガス3口コンロ・ソフトクローズ収納) ○キッチン背面カップボード&家電収納標準装備 ○洗面化粧台(シャンプードレッサータイプ・3面鏡) ○浴室(1坪タイプUB:セミオートバス・サーモキレイ床・浴室乾燥機付・浴室TV標準装備) ○TOTOウォシュレット一体型便座(全箇所) ○全窓Low-eペアガラスサッシ+網戸付 ○防犯シャッター付き ○録画機能付カラーモニタインターフォン ○人感センサー付LED玄関灯 ○24時間換気 |
| 保証・保険 |
○地盤保証20年 ○当社建物10年保証 ○白蟻保証5年 ○他個別メーカー保証 (外壁パワーボード等) ※地震補償付き住宅 ※JIO我が家の保険 (住宅瑕疵担保責任保険)10年加入 |
