

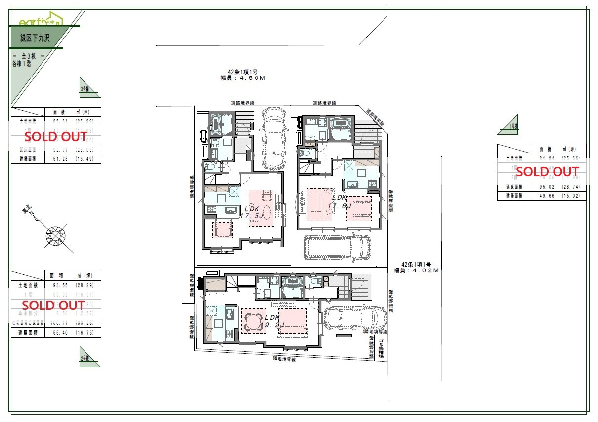
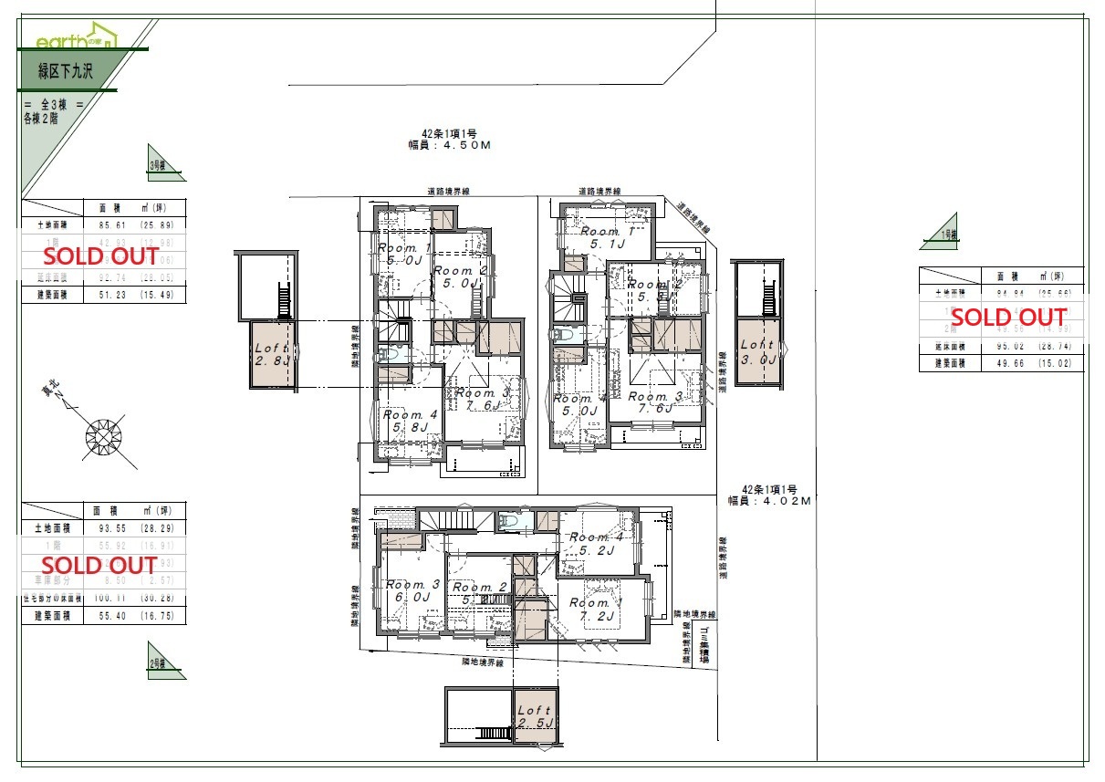
| 所在地 |
神奈川県相模原市緑区下九沢字松ノ下2561番1 ※ナビ入力 : 緑区下九沢2565-1の隣 |
|---|---|
| 販売価格 |
1号棟 SOLD OUT 2号棟 SOLD OUT 3号棟 SOLD OUT |
| 建物面積 |
1号棟 SOLD OUT 2号棟 SOLD OUT 3号棟 SOLD OUT |
| 土地面積 |
1号棟 SOLD OUT 2号棟 SOLD OUT 3号棟 SOLD OUT |
| 地目 | 宅地 |
| 都市計画 | 市街化区域 |
| 用途地域 | 第一種中高層住居専用地域 |
| 建ペイ率 | 60% |
| 容積率 | 150% |
| 建物構造 | 木造(在来工法)2階建て |
| 現況 | 建築中 |
| 引き渡し時期 | 相談 |
| 完成予定日 |
1号棟 2024年7月中旬 2号棟 2024年6月下旬 3号棟 2024年6月中旬 |
| 法令上の制限 | 準防火地域 |
| 設備 | 東京電力・公営水道・公共下水 |
| 交通 | JR横浜線『橋本』駅より 橋36系統「上大島行き」バス14分、「九沢自治会館前」バス停徒歩3分 |
|---|---|
| こだわりポイント! |
◯木造在来軸組工法+(外壁下地構造用合板&剛床仕様) ◯基礎:ベタ基礎 ◯床下換気:全周通気(基礎パッキン工法) ◯アスファルトシングル葺き屋根 ◯省エネ基準適合住宅:建物断熱性能等級4+一時エネルギー消費等級4 ◯外壁ALCパネル厚37㎜(旭化成ヘーベルパワーボード:耐久性+防火性+防災性+遮音・断熱性+メンテナンス性向上仕様) ◯窓:全窓Low-eペアガラス+網戸標準装備 ◯引違・掃出窓:手動式シャッター付(1・2階共) ◯システムキッチン:浄水機能付ハンドシャワー水栓・ビルトイン食器洗乾燥機・IHクッキングヒーター・ソフトクローズ足元収納+カップボード&家電収納標準装備 ◯浴室(1坪タイプUB):断熱浴槽(専用フタ付)・セミオート給湯・浴室乾燥機付 ◯洗面化粧台(W900):シャンプードレッサータイプ・3面鏡 ◯トイレ:温水シャワートイレ一体型便座(壁付リモコン) ◯床下収納庫:洗面脱衣室・キッチン各1箇所 ◯リビング+ダイニング遠赤外線床暖房付き ◯カラーTVモニターインターフォン ◯人感センサー付玄関灯 ◯24時間換気 ◯給湯設備(オール電化仕様):エコキュート(フルオート370Lタイプ) |
| 保証・保険 |
○地盤保証20年 ○当社建物10年保証 ○白蟻保証5年 ○他個別メーカー保証 (外壁パワーボード等) ※地震補償付き住宅(SBI少額短期保険付与) ※JIO我が家の保険 (住宅瑕疵担保責任保険)10年加入 |